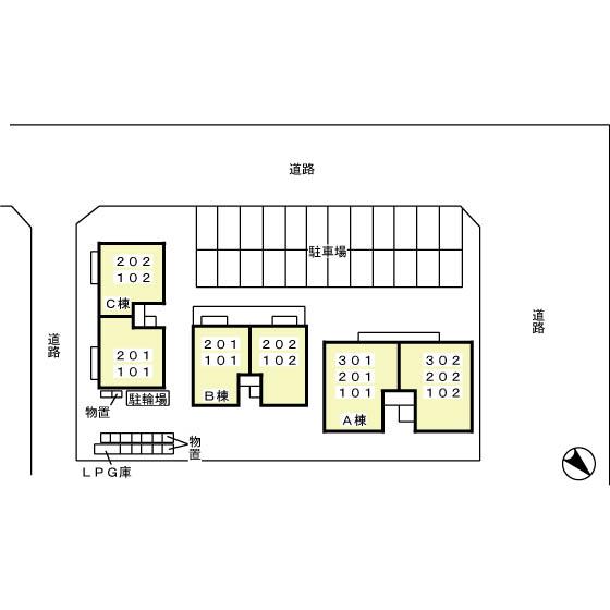
【15341】青森県八戸市大字尻内町字高田/★D-room★ペット可(小型犬)★インターネットWi-Fi無料★カーサ・オリーブC C-101/6.6万円
・ペット可(小型犬)・エアコン・灯油FF・追焚・浴室乾燥機・洗面化粧台・温水洗浄便座・TVドアホン・物置・駐輪場・敷地内ゴミ置き場・CATV・インターネットWi-Fi無料(D-room Wi-Fiのみ
★D-room★ペット可(小型犬)★インターネットWi-Fi無料★カーサ・オリーブC C-101
| 種別 | アパート |
|---|---|
| 賃料 | 6.6万円 |
| 間取り | 2LDK(LDK11.5 洋6 洋6) |
| 所在地 | 青森県八戸市大字尻内町字高田 |
| 取引態様 | 仲介 |
【水洗トイレ】有り【エアコン】有り【暖房機】灯油FF【物置】有り【給湯器】ガス給湯器・3箇所【ガス】プロパン【ペット可】(ペット:小型犬(1匹)、敷金1ヶ月増額) 【インターネット無料】
★D-room★ペット可(小型犬)★インターネットWi-Fi無料★カーサ・オリーブC #theta360 - Spherical Image - RICOH THETA
| 交通 | 西高校前バス停まで徒歩3分 | 管理費 | 0円 |
|---|---|---|---|
| 敷金 | 0円 | 礼金 | 72,600円 |
| 共益費 | 4,500円 | 仲介料 | 72,600円 |
| 入退日 | 2026/01/13解約予定 | 借家人賠償責任保険 | 機関保証に加入した場合、家財保険の加入は不要です。 |
| 契約 | 2年契約(更新可) | 築年月 | 2007/ 3(18年) |
| 専有面積 | 55.48㎡ | 構造 | 軽量鉄骨造2階建 1階部分 |
| 学区(小) | 八戸市立三条小学校 | 学区(中) | 八戸市立三条中学校 |
| ペット | 可 ペット:小型犬(1匹)、敷金1ヶ月増額 | ||
| 駐車場 | 駐車場1台目 有り(月額)無料/駐車場2台目 有り(月額)無料 | ||
| 備考 | ・ペット可(小型犬)・エアコン・灯油FF・追焚・浴室乾燥機・洗面化粧台・温水洗浄便座・TVドアホン・物置・駐輪場・敷地内ゴミ置き場・CATV・インターネットWi-Fi無料(D-room Wi-Fiのみ ※契約時にクリーニング費として、71,500円が必要となります。 機関保証加入必須。初回保証料35000円、月額保証料賃料等総額の1%+800円/月(※口座振替手数料99円) 65歳以上の方の契約は定期借家契約(2年再契約型)となり、機関保証の加入が必須となります。 (初回保証料:月額賃料等合計額×100%、更新:2万円/1年毎) ICロック電池(初回2,750円) が必要になります。 ※ルームクリーニング料金にエアコンクリーニング費用を含みます。 本貸室の電気は、貸主から配給されます。 ※法人契約で電気代の負担が個人の場合、クレジットカードの利用が可能です。 |
||

-
- よこまちストア一番町店 約1900m
- ローソン八戸駅前店 約1450m
- 薬王堂八戸尻内店 約1300m
- 八戸市立三条中学校 約800m
- 八戸市立三条小学校 約700m
- 八戸赤十字病院 約3200m
八代産業株式会社
青森県八戸市内丸1丁目6番4号(JR本八戸駅構内)
宅地建物取引業免許 青森県知事(12)第1735号
賃貸住宅管理業者登録
国土交通大臣(02)第000076号
FAX:0178-45-1202 info@8463.co.jp
この物件へのお問い合わせ
詳しい資料をFAX・Eメール・郵送でお送り致します。お気軽にお問い合わせください。

































