【21456】青森県八戸市大字三日町/☆嬉しい都市ガス!エレベーター付きで快適☆サンパルコ 401/8万円
☆車がなくても大丈夫!便利な中心街で生活してみませんか?☆
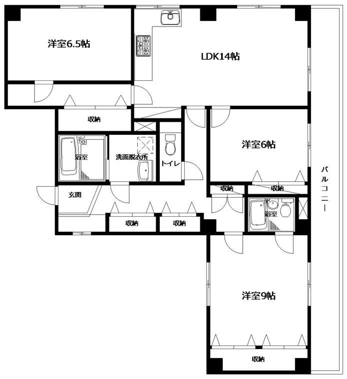
☆嬉しい都市ガス!エレベーター付きで快適☆サンパルコ 401
| 種別 | マンション |
|---|---|
| 賃料 | 8万円 |
| 間取り | 3LDK(LDK14 洋9 洋6 洋6.5) |
| 所在地 | 青森県八戸市大字三日町 |
| 取引態様 | 仲介 |
【水洗トイレ】有り【エアコン】有り【暖房機】無し【物置】無し【給湯器】ガス給湯器・3箇所【ガス】都市ガス【ペット不可】(ペットの飼育・持込みは出来ません。)
| 交通 | JR八戸線本八戸駅まで徒歩15分 | 管理費 | |
|---|---|---|---|
| 敷金 | 240,000円 | 礼金 | 0円 |
| 共益費 | 5,000円 | 仲介料 | 88,000円 |
| その他月額費用 | |||
| 賃貸保証料内容 | 初回保証委託料:月額賃料等の40%(最低保証料15000円)※更新:1年毎(更新保証料10000円) | ||
| 初期費用等 | 更新料等 | 更新事務手数料44,000円 | |
| 入退日 | 即入居可能 | 借家人賠償責任保険 | 借家人賠償責任保険要加入 |
| 契約 | 2年契約(更新可) | 築年月 | 1993/ 2(33年) |
| 専有面積 | 98.06㎡ | 構造 | 鉄骨造9階建 4階部分 |
| 学区(小) | 八戸市立八戸小学校 | 学区(中) | 八戸市立第二中学校 |
| ペット | 不可 ペットの飼育・持込みは出来ません。 | ||
| 駐車場 | 駐車場はありません。 | ||
| 備考 | マンション専用コインランドリー有り ・IHクッキングヒーター |
||

-
- ローソン八戸三日町店 約150m
- モスバーガー八戸三日町店 約100m
- 八戸市立第二中学校 約1500m
- 八戸市立八戸小学校 約1600m
- 八戸市役所 約400m
- 青森銀行三日町支店 約50m
八代産業株式会社
青森県八戸市内丸1丁目6番4号(JR本八戸駅構内)
宅地建物取引業免許 青森県知事(12)第1735号
賃貸住宅管理業者登録
国土交通大臣(02)第000076号
FAX:0178-45-1202 info@8463.co.jp
この物件へのお問い合わせ
詳しい資料をFAX・Eメール・郵送でお送り致します。お気軽にお問い合わせください。


























