【08414】青森県八戸市長苗代2丁目/★ペット可(小型犬・猫)★コーポハピネス D/3.3万円
【キャンペーン物件】個人契約の場合は敷金・仲介手数料なし
ホームセンター近くの賃貸アパートです。バス停も近くにありとても便利です★
★ペット可(小型犬・猫)★コーポハピネス D
| 種別 | アパート |
|---|---|
| 賃料 | 3.3万円 |
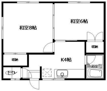
| 間取り | 2K(K4 和8 和6) |
| 所在地 | 青森県八戸市長苗代2丁目 |
| 取引態様 | 仲介 |
【水洗トイレ】有り【エアコン】有り【暖房機】灯油FF【物置】無し【給湯器】ガス給湯器・1箇所【ガス】プロパン【ペット可】(ペット可(小型犬・猫OK・1匹まで・敷金1ヶ月追加))
★ペット可(小型犬・猫)★コーポハピネス #theta360 - Spherical Image - RICOH THETA
| 交通 | 長苗代二丁目バス停まで徒歩2分 | 管理費 | |
|---|---|---|---|
| 敷金 | 33,000円 | 礼金 | 0円 |
| 共益費 | 0円 | 仲介料 | 0円 |
| その他月額費用 | |||
| 賃貸保証料内容 | 初回保証委託料:月額賃料等の40%(最低保証料15000円)※更新:1年毎(更新保証料10000円) | ||
| 初期費用等 | 更新料等 | 更新事務手数料18,150円 | |
| 入退日 | 即入居可能 | 借家人賠償責任保険 | 借家人賠償責任保険要加入 |
| 契約 | 2年契約(更新可) | 築年月 | 1990/ 3(36年) |
| 専有面積 | 39.74㎡ | 構造 | 木造2階建 2階部分 |
| 学区(小) | 八戸市立下長小学校 | 学区(中) | 八戸市立下長中学校 |
| ペット | 可 ペット可(小型犬・猫OK・1匹まで・敷金1ヶ月追加) | ||
| 駐車場 | 駐車場1台目 有り(月額)無料/駐車場2台目はありません。 | ||
| 備考 | ペット可(小型犬・猫OK・1匹まで) |
||

-
- ジョイス八戸石堂店 約550m
- ユニバース下長店 約1500m
- セブンイレブン八戸長苗代2丁目店 約200m
- DayPro八戸石堂店 約200m
- 八戸市立下長中学校 約1300m
- 八戸市立下長小学校 約600m
八代産業株式会社
青森県八戸市内丸1丁目6番4号(JR本八戸駅構内)
宅地建物取引業免許 青森県知事(12)第1735号
賃貸住宅管理業者登録
国土交通大臣(02)第000076号
FAX:0178-45-1202 info@8463.co.jp
この物件へのお問い合わせ
詳しい資料をFAX・Eメール・郵送でお送り致します。お気軽にお問い合わせください。

























